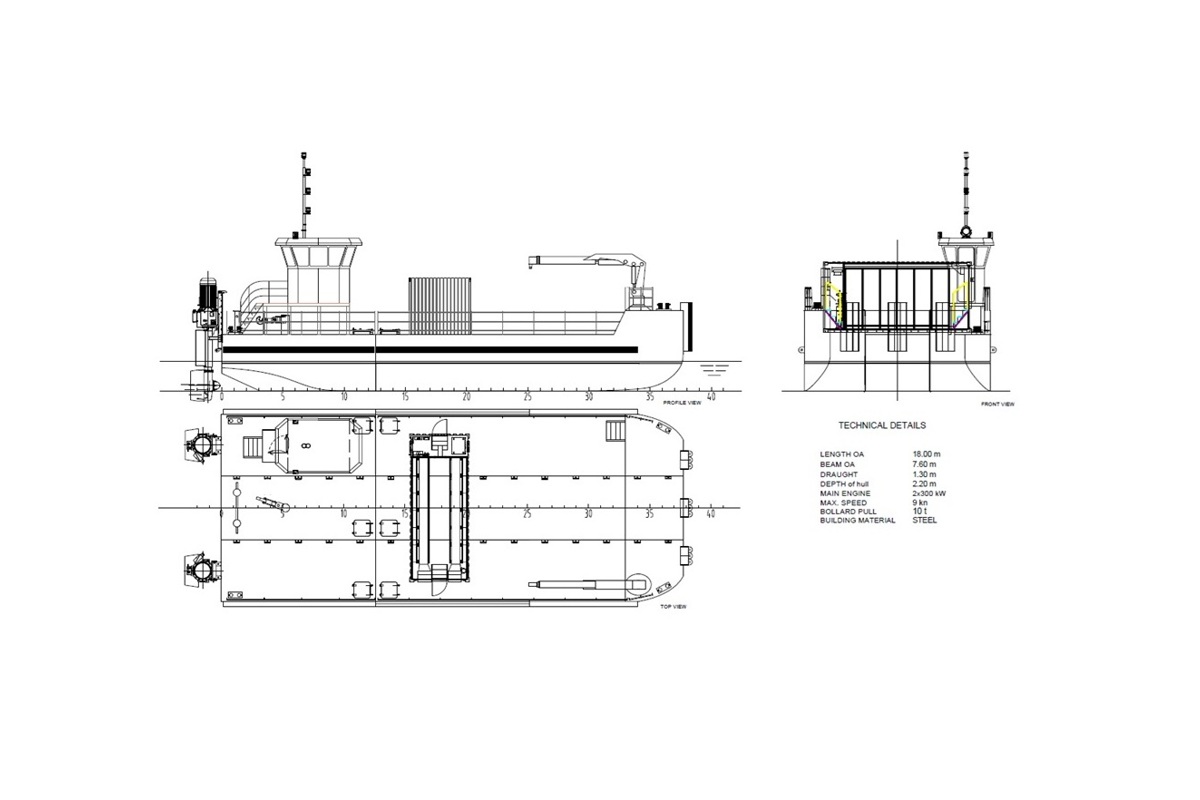
In cooperation with trusted naval architects and shipyards we offer modular multicat workboats. These highly useful workboats allow for movement of crew, project equipment, cargo barges, as well as provide the required push-pull capacity to move the jackup barge to next position. With a lead time of approximately 6 months we have ready to build designs for both conventional, hybrid, as well as fully electric powered modular multicats.

Please contact us for further info and or project inquiries.